column
コラム
悩まなくていい家ではなく、悩みたいことに集中できる家|aisuの家の家づくり

家づくりを始めると、決めなければならないことが本当にたくさんあります。間取り、素材、設備、照明、外観……自由に選べるからこそ、楽しさと同じくらい「大変さ」を感じることも少なくありません。
aisuの家が目指したのは、その「悩む時間」をただ減らすのではなく、暮らしを考えるための豊かな時間に変えることです。
aisuの家は、サイズや仕様をあらかじめ整えた「セミオーダー型」の住まいです。そのため、注文住宅に比べて打合せ時間をおよそ8時間ほど短縮できます。(aisuの家の実績より)
けれど、私たちは「悩むこと自体が悪い」とは考えていません。大切なのは、「どこで悩むか」を選ぶことだと思っています。
選択肢をある程度絞っているからこそ、「何を基準に選べばいいのかわからない」「すべてを自分で決めるのは不安」といった状況を避けることができます。
浮いた時間で、たとえば理想の家具を探しに出かけたり、家族で将来の暮らしについて話し合ったり、庭や植栽の計画をゆっくり練ったり。そんなふうに「暮らしを育てる時間」を過ごしていただきたいのです。

さらに、VR(バーチャルリアリティ)を使えば、基本の間取りを自宅で体感しながら検討することも可能です。
そしてもうひとつ、大事なことは、aisuの家で採用している素材や設備は、どれも自信を持っておすすめできるものばかり。木製窓や自然素材など、通常は高価で手に入りにくいものも、工夫を重ねることで無理なくご提案できるようにしています。
安さだけを優先するのではなく、無垢材や心地よさに直結するものを丁寧に選ぶ。その姿勢は、「質を落としたくない」という方にこそ安心していただけると考えています。

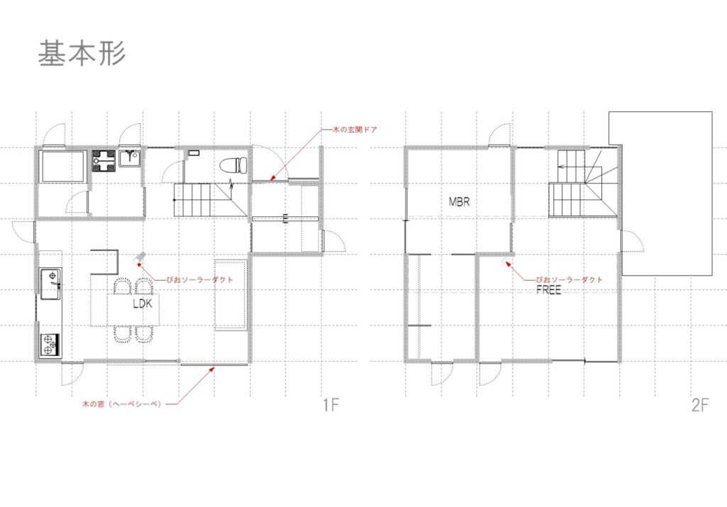
aisuの家は、建物の基本サイズをあらかじめ設定しています。自由設計にありがちな「ここを少し広げたい」「ここだけ小さく」といった変更は原則ありません。その分、設計の手間が減り、コストも抑えられます。
ただし、暮らしに合わせた収納や照明計画、家具の提案などには柔軟に対応可能です。自由度を残しつつも、シンプルで効率的なプロセスで家づくりを進められるのがaisuの家の特徴です。
「悩まなくていい家」ではなく「悩みたいことに集中できる家」。aisuの家は、最初からすべてを選ばないという前提に立っています。でも、それはあきらめではありません。本当に大切にしたい部分に、しっかりと時間と気持ちを注ぐための工夫です。

「家づくりにはこだわりたいけれど、全部を自分で決めるのは大変」「時間は節約したいけれど、仕上がりの質は妥協したくない」そんな方にこそ、aisuの家は寄り添えると思います。
迷う時間を減らして、もっとこれからの暮らしを想像する時間を持っていただきたい。aisuの家は、暮らしに集中できる家づくりの形。その提案を、私たちは大切にしています。